Alexandra Road, St. Ives

4 Bed Detached bungalow for sale

£550,000

Calculate your mortgage repayments
  • 4 bedrooms
  • 2 bathrooms
  • 2 receptions
  • Council Tax: D
  • Heating: Gas Central

Key Features

  • A MOST SPACIOUS FOUR BEDROOM DETACHED DORMER BUNGALOW
  • AMPLE OFF ROAD PARKING
  • KITCHEN / BREAKFAST ROOM
  • TWO RECEPTION ROOMS
  • A LUXURIOUSLY APPOINTED BATHROOM
  • BEDROOM WITH ENSUITE W/C
  • POPULAR RESIDENTIAL LOCATION
  • A MUST SEE PROPERTY
  • EPC:D67
  • SCAN QR CODE FOR MATERIAL INFORMATION

Description

PROPERTY DESCRIPTION

Chywartha – Spacious Four Bedroom Detached Dormer Bungalow in St Ives. Situated within a highly sought-after residential area of St Ives, Chywartha is a beautifully presented and exceptionally spacious four-bedroom detached dormer bungalow offering versatile accommodation ideal for family living. The property benefits from gas central heating and double glazing throughout. The well-proportioned accommodation briefly comprises an inviting entrance hallway, a generous lounge/diner perfect for entertaining, a separate sitting room, and a well-appointed kitchen/diner. There are two comfortable ground floor bedrooms and a modern family bathroom completing the ground floor layout. To the first floor are two further bedrooms, one of which enjoys the added convenience of an ensuite W/C. Externally, the property continues to impress with a substantial gravel driveway providing ample off-road parking and leading to a detached garage. To the rear, there is a pleasant enclosed lawned garden, offering an ideal space for relaxation and outdoor enjoyment.

LOCATION

Alexandra Road is a popular residential location within St Ives, well placed for easy access into St Ives town centre, the Stennack Surgery, nearby schools and local transport links. St Ives is famous for its beautiful Harbour, sandy beaches, and rugged coastline — including Porthmeor, Porthminster, Porthgwidden and Harbour beaches — making it a popular destination for swimming, surfing, sunbathing and scenic walks. St Ives has been an important art centre since the early 20th century, attracting painters, sculptors and potters drawn to its unique light and inspiring landscapes. It is home to world-class galleries such as Tate St Ives and the Barbara Hepworth Museum & Sculpture Garden.

THE ACCOMMODATION COMPRISES

(All dimensions are approximate and measure by LIDAR)

Entrance door opening into...

ENTRANCE VESTIBULE

Laminate flooring, step up and door into...

ENTRANCE HALLWAY

Laminate flooring, radiator, carpeted stairs to first floor level, useful understairs storage cupboard. Door leading into...

LOUNGE / DINER

A spacious room with fitted carpet in the lounge and laminate flooring in the dining area. Double glazed bay window to the side, radiator, double glazed window to the front, inset ceiling spot lights.

BEDROOM

Laminate flooring, inset ceiling spot lights, double glazed window to the front, radiator.

BEDROOM.

Fitted carpet, double glazed window to the rear, radiator.

SITTING ROOM

Laminate flooring, shaker wall panelling, double glazed window to the side, radiator, cupboard housing electric consumer unit. Open into...

KITCHEN / BREAKFAST ROOM

Vinyl wood effect flooring, double glazed window to the side, and two double glazed windows to the rear, Fitted with a range of base and wall mounted high gloss kitchen units with granite effect roll top work surfacing over, stainless steel one and half bowl sink and drainer with mixer tap, tiled splash back, four ring gas hob, tiled splash back, extractor above, and oven below. Space for freestanding washing machine and dishwasher. Space for dining table and chairs and freestanding fridge freezer. Door into...

REAR PORCH

Door to the side with steps leading down to the garden.

FAMILY BATHROOM

A spacious bathroom fitted with a spa bath, mixer tap, tiled surround, mains fed shower above and shower screen to the side. Tiled walls, heated towel rail, wall mounted wash hand basin, obscured double glazed window to the side, low level w/c.

.

From the entrance hallway, carpeted stairs lead to...

FIRST FLOOR LANDING

Fitted carpet, door into...

BEDROOM..

Fitted carpet, sloping ceiling with inset ceiling spot lights, double glazed window to the front aspect, radiator, space for freestanding wardrobes, access into eaves storage area, door into...

ENSUITE W/C

Low level w/c, wall hung wash hand basin, part tiled walls with mosaic tiled border, Velux roof light,

BEDROOM...

A slightly irregular shaped room with fitted carpet, sloping ceiling, built in cupboard, roof light, inset ceiling spot lights, radiator.

OUTSIDE

To the front of the property is a large gravel driveway providing ample offroad parking. To the side of the driveway is a mobile home which can be included in the sale via separate negotiation. Access to both sides of the property leads around to the rear garden which is laid mainly to lawn and enclosed by hedging and fencing. To the left hand side of the property, access leads to a detached garage (requiring some refurbishment)

SERVICES

Mains gas, water, electricity and drainage. The property is heated via a gas fired boiler.

DIRECTIONS

From our office in Hayle proceed left, heading towards the main A30 road. Take the third exit at the Loggans Moor roundabout and continue along the A30 heading towards St Ives. At the end of the A30, take the second exit onto the A3074, past the garden centre and go over the mini roundabout and the the first exit at the next roundabout. Continue along this road, passing the Balnoon Inn. At the next junction, turn right and proceed along the B3311, heading into Halsetown. Follow the road to the left at the Halsetown Inn. Continue along this road, past the Fire station towards St Ives, and turn left onto Alexandra Road. Continue up the hill where the property will soon be seen on your right hand side.

MATERIAL INFORMATION

Verified Material Information:

Council Tax band: D
Tenure: Freehold
Property type: House
Property construction: Standard construction
Energy Performance rating: D
Number and types of room: 4 bedrooms, 2 bathrooms, 2 receptions
Electricity supply: Mains electricity
Solar Panels: No
Other electricity sources: No
Water supply: Mains water supply
Sewerage: Mains
Heating: Mains gas-powered central heating is installed.
Heating features: Double glazing
Broadband: FTTP (Fibre to the Premises)
Mobile coverage: O2 - Great, Vodafone - Great, Three - Good, EE - Good
Parking: Driveway
Building safety issues: No
Restrictions - Listed Building: No
Restrictions - Conservation Area: No
Restrictions - Tree Preservation Orders: None
Public right of way: No
Long-term area flood risk: No
Historical flooding: No
Flood defences: No
Coastal erosion risk: No
Planning permission issues: No
Accessibility and adaptations: None
Coal mining area: No
Non-coal mining area: Yes

All information is provided without warranty. Contains HM Land Registry data © Crown copyright and database right 2021. This data is licensed under the Open Government Licence v3.0.

The information contained is intended to help you decide whether the property is suitable for you. You should verify any answers which are important to you with your property lawyer or surveyor or ask for quotes from the appropriate trade experts: builder, plumber, electrician, damp, and timber expert.

Council Tax Band: D


Location


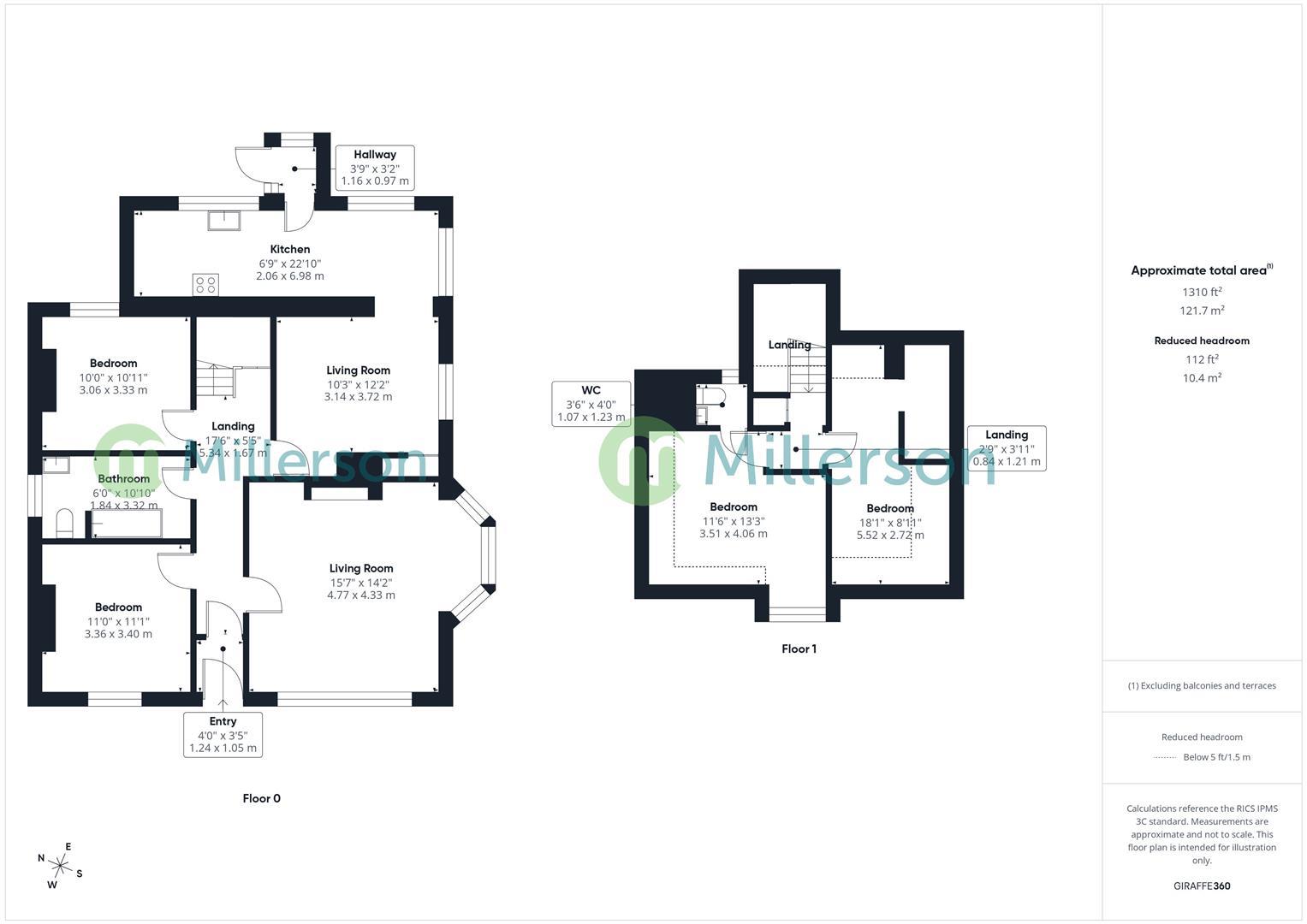
Floorplan

Floorplan for Alexandra Road, St. Ives

EPC

EPC for Alexandra Road, St. Ives

Video Tour

*This mortgage calculator is provided for general information purposes only. It's intended to provide you with an estimate of your potential mortgage payments and does not constitute an offer of finance or advice. The calculations are based on the information you provide and do not take into account your individual needs and circumstances.

The calculator does not include all the costs you will need to pay when taking out a mortgage. Your actual mortgage payments may be higher or lower than the estimates provided by this calculator. The interest rates used in the calculations are subject to change and may not reflect the actual rates available in the market.

Please note that the calculator does not consider changes in interest rates over time, early repayment charges, or any other fees and charges that may apply to your mortgage. You should always seek professional advice before making any financial decisions.

Remember, your home may be repossessed if you do not keep up repayments on your mortgage.

Calculate Your Stamp Duty
£
Results
Stamp Duty To Pay:
Effective Rate:
Tax Band % Taxable Sum Tax

£ 0
£ 0
Your estimated gross rental yield would be:
0.00%

Similar Properties

Spernen Close, Carbis Bay, St. Ives
For Sale

Spernen Close, Carbis Bay, St. Ives

3 Bed Terraced House For Sale
Guide price £300,000
Polwithen Drive, Carbis Bay, St. Ives
For Sale

Polwithen Drive, Carbis Bay, St. Ives

2 Bed Semi-detached bungalow For Sale
Guide price £285,000
Polwithen Drive, Carbis Bay, St. Ives
Sold STC

Polwithen Drive, Carbis Bay, St. Ives

2 Bed Detached bungalow Sold STC
Guide price £310,000